House of Three Generations — Intergenerational living around a planted courtyard.

A coastal residence in Salinas, Ecuador that weaves three independent homes around a shared garden, balancing privacy, climate comfort, and collective life.


Project Overview

Casa de Tres Generaciones is organised around a central courtyard that acts as the heart of family life. The patio, landscaped with trees, flowers, and natural rocks, creates a microclimate and strengthens the connection between interior and exterior spaces. Brick masonry, exposed concrete, and stone define the construction, emphasising robustness and material honesty. Large openings ensure ventilation and daylight, while covered walkways and transitional thresholds mediate between private rooms and communal areas. The project supports intergenerational living by offering independent units connected by the courtyard, where privacy and togetherness coexist.

  • Typology: Residential — three-family house
  • Location: Salinas, Ecuador
  • Status: Built
  • Year: 2021
Courtyard with stepping stones and native planting

Spatial Strategy

Each of the three independent units is carefully articulated around the courtyard, offering autonomy to each generation while preserving the essence of collective life. The design prioritises light, ventilation, and the tactile qualities of local materials.


Courtyard walkway with stepping stones and native planting
Stone path weaving through the courtyard garden
Living room opening onto the central patio
Panoramic view across the planted courtyard
Covered walkway beside the garden
Interior view with timber furniture
Bedroom opening directly to the patio
Timber staircase detail leading upstairs
Corridor framing native vegetation
Patio at dusk illuminated with warm lighting
Garden view highlighting native planting
Outdoor seating beneath a timber pergola
Early morning light across the central patio
Entry path lined with stone and vegetation
Patio gathering space with custom timber furniture
Exterior view showing layered roofs and landscape
Atmospheric evening view with courtyard lighting
Isometric diagram of the three-generation house
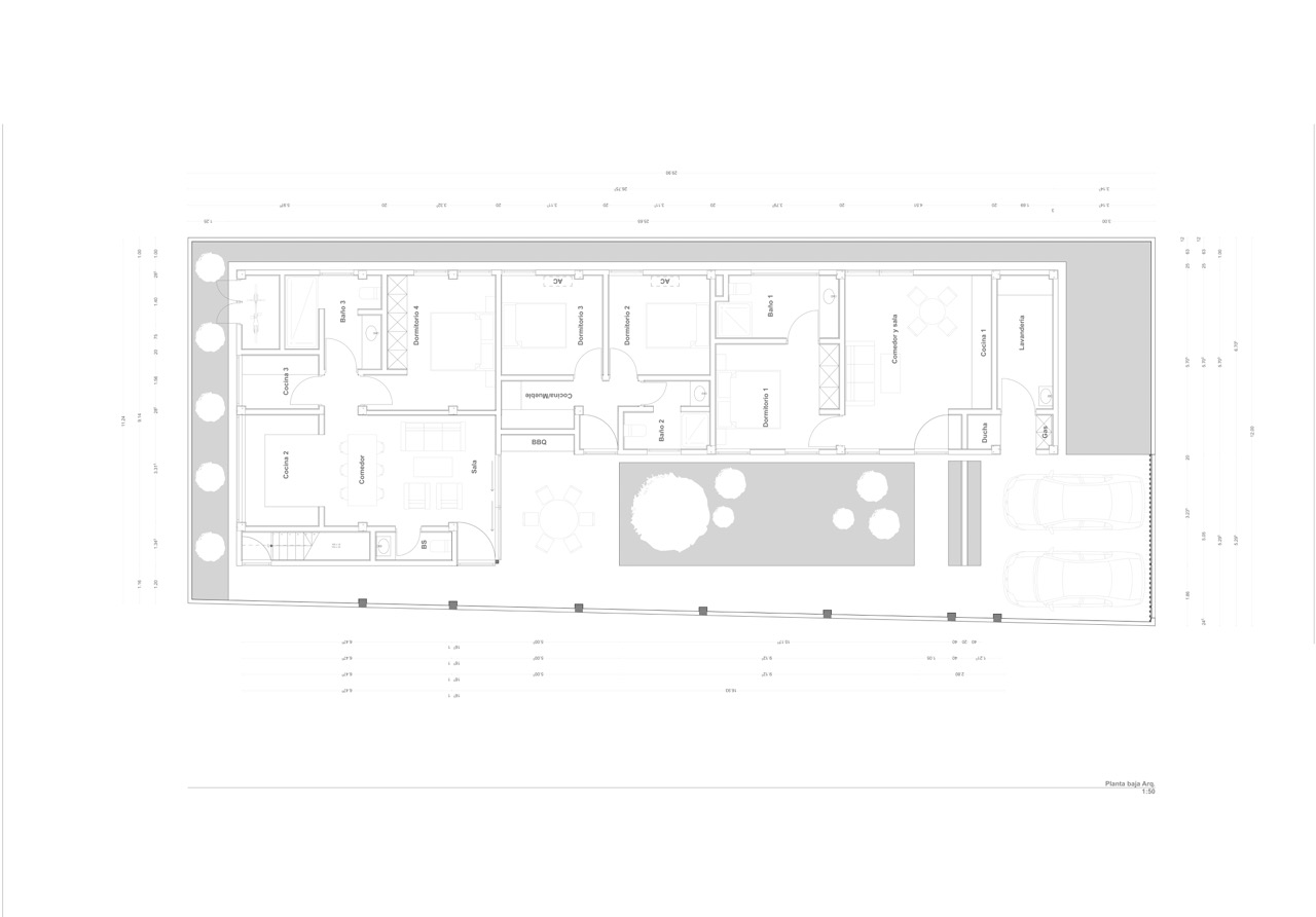
Ground floor plan of the house
Upper floor plan of the house
Roof plan and section
Construction detail of fireplace and roof structure
Rendered perspective of the courtyard atmosphere
Rendered view of interior living space
Rendered perspective of bedrooms opening to patio
Rendered aerial of the house composition

Credits

Project by Proyectual Studio in collaboration with local builders and artisans in Salinas. The house celebrates the climate, material culture, and intergenerational dynamics of coastal Ecuador.